Wheel Pad L3C
Julie
Lineberger
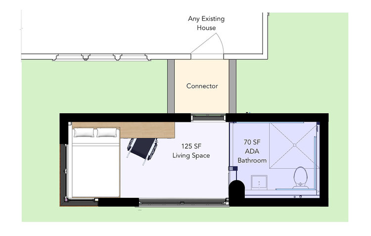
Wheel Pad offers the chance for living, and healing, at home.
200 square feet of universally designed and ADA accessible space allows a loved one with mobility issues to return home or stay at home. Wheel Pad is crafted in a factory and arrives ready to connect to an existing home. When your home isn’t fully accessible, Wheel Pad makes it so, now.
• Generosity Campaign to help us launch this project: https://www.generosity.com/medical-fundraising/wheel-pad-prototype
• LinkedIn: https://www.linkedin.com/company/10576355/
Online Categories
Telephone
44.5588028, -72.5778415


